W BzG 2/2025 szczegółowo opisaliśmy przedmiarowanie i kosztorysowanie ław fundamentowych i stopy fundamentowej wykonanych w technologii monolitycznej w budynku mieszkalnym jednorodzinnym. Tym razem zajmiemy się kolejnymi żelbetowymi elementami konstrukcyjnymi: stropem gęstożebrowym (DZ-3) z wieńcem obwodowym, monolitycznym stropem płytowym (fragment) oraz schodami wewnętrznymi. Przyjmujemy podobne ograniczenia i założenia, jak poprzednio, tj.:

  • roboty (elementy) betonowe i żelbetowe monolityczne wykonywane są w deskowaniach tradycyjnych z drewna iglastego,
  • wybrano typowe elementy konstrukcyjne występujące w budynku mieszkalnym jednorodzinnym,
  • przedmiarowanie robót betonowych i żelbetowych monolitycznych wykonano zgodnie z zasadami zawartymi w katalogu, tj. KNR 2-02 „Konstrukcje budowlane”, Rozdz. 02 Konstrukcje betonowe i żelbetowe monolityczne (dalej w skrócie: KNR 2-02, Rozdz. 02) [1]. Należy zaznaczyć, że zasady przedmiarowania robót betonowych i żelbetowych monolitycznych w innych katalogach mogą się różnić od tych podanych w KNR 2-02 Rozdz. 02.

Przykładowe zadanie

Dla stropu gęstożebrowego DZ-3 nad parterem (jak na rys. 1, 2) oraz schodów wewnętrznych żelbetowych monolitycznych (jak na rys. 3) należy:

  • ustalić zakres rzeczowy wszystkich robót żelbetowych monolitycznych,
  • sporządzić przedmiar robót żelbetowych monolitycznych,
  • sporządzić kosztorys robót żelbetowych monolitycznych metodą kalkulacji szczegółowej.

Warto zauważyć, że zasady przedmiarowania wykonania innych stropów gęstożebrowych (np. Fert, Kontra, Teriva itp.) są takie same lub podobne, więc opisany sposób postępowania sprawdzi się także przy zastosowaniu tego typu rozwiązań.

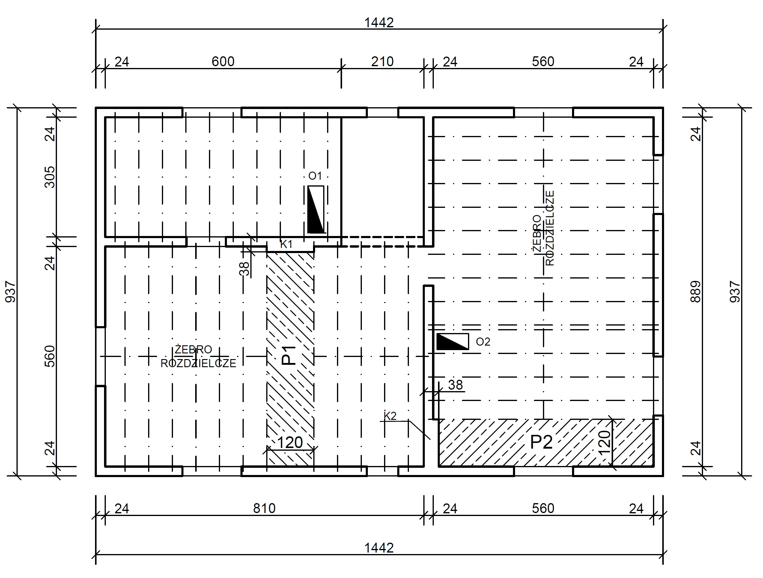
Rzut stropu gęstożebrowego DZ-3 nad parterem Rys. M. Szymański

Rys. 1 Rzut stropu gęstożebrowego DZ-3 nad parterem

Przekrój stropu gęstożebrowego DZ-3 Rys. M. Szymański

Rys. 2 Przekrój stropu gęstożebrowego DZ-3: a – przekrój poprzeczny, b – zdwojone belki pod ścianę działową

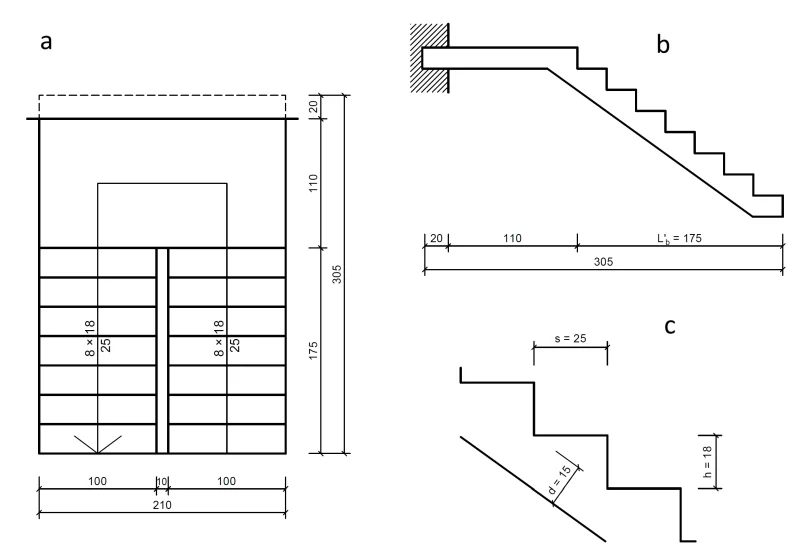
Schody wewnętrzne żelbetowe monolityczne Rys. M. Szymański

Rys. 3 Schody wewnętrzne żelbetowe monolityczne: a – rzut, b – przekrój, c – stopień, najważniejsze wymiary

Ustalenie zakresu rzeczowego robót

Założono, że na kondygnacji parteru wymurowano (do poziomu spodu wieńców obwodowych) wszystkie ściany konstrukcyjne, na których będzie oparty strop (tj. belki prefabrykowane stropu gęstożebrowego DZ-3). Kompleksowa realizacja stropu nad parterem (jak na rys. 1) w budynku mieszkalnym jednorodzinnym obejmuje wykonanie:

  • stropu gęstożebrowego DZ-3,
  • fragmentu stropu płytowego P1, P2 (w miejscach, w których nie można wykonać stropu gęstożebrowego) z przygotowaniem i montażem zbrojenia,
  • wieńca obwodowego żelbetowego z przygotowaniem i montażem zbrojenia,

oraz

  • schodów wewnętrznych żelbetowych (dwubiegowych z płytą spocznikową) z przygotowaniem i montażem zbrojenia (rys. 3).

Przedmiarowanie

Zasady przedmiarowania robót betonowych i żelbetowych monolitycznych szczegółowo opisano w artykule Sporządzanie przedmiaru i kosztorysu robót żelbetowychBzG 2/2025. Ilości robót dla elementów żelbetowych monolitycznych o kształcie:

  • blokowym (ławy, stopy, płyty fundamentowe) oraz prętowym (słupy, belki, wieńce) oblicza się w metrach sześciennych [m3] objętości brył geometrycznych poszczególnych elementów,
  • płytowym (ściany, stropy, biegi schodowe, spoczniki, balkony, daszki itp.) oblicza się w metrach kwadratowych [m2] ich powierzchni.

Zgodnie bowiem z KNR 2-02, Rozdz. 02, pkt 4. Zasady przedmiarowania, pkt 4.1. Elementy i konstrukcje betonowe żelbetowe, dla których nakłady zostały ustalone na 1 m3 betonu w konstrukcji, oblicza się w metrach sześciennych objętości brył geometrycznych poszczególnych elementów. Od tak obliczonej objętości nie potrąca się otworów, wnęk lub gniazd o kubaturze mniejszej niż 0.1 m3 każde oraz kubatury sfazowań o szerokości skosu do 15 cm.
Elementy i konstrukcje płaskie, jak: ściany, płyty itp. oblicza się w metrach kwadratowych ich powierzchni. Z powierzchni elementów lub konstrukcji nie potrąca się otworów, wnęk lub gniazd o objętości do 0.1 m3 każde.

1. Wykonanie stropu gęstożebrowego DZ-3 nad parterem

Według KNR 2-02 Rozdz. 02, pkt 4. Zasady przedmiarowania, pkt 4.10. Stropy Akermana, DZ, Kontra i Fert oraz z kształtek szklanych należy obliczać w metrach kwadratowych ich powierzchni w świetle murów ścian, belek lub wieńców, (…).

A zatem w celu określenia ilości robót należy obliczyć powierzchnię stropu gęstożebrowego DZ-3, przyjmując jego wymiary (tj. długość x szerokość) w świetle wymurowanych ścian konstrukcyjnych lub innych podpór (np. podciągów).

Dla roboty „wykonanie stropu gęstożebrowego DZ-3 nad parterem” wybrano pozycję z KNR 2-02, Rozdz. 02, Tab. 0212 Stropy z pustaków typu DZ, Kol. 01 Stropy z pustaków typy DZ-3 na belkach prefabrykowanych.

Obliczono ilości robót (rys. 1):

L1 = 6,00 · 3,05 + 8,10 × 5,60 + 5,60 × 8,89 = 18,30 + 45,36 + 49,78 = 113,44 m2

W stropie gęstożebrowym DZ-3, w miejscach kominów wykonano dwa stropy żelbetowe płytowe monolityczne (płyty żelbetowe), których powierzchnię należy odjąć od powierzchni stropu:

P1 + P2 = 1,20 × (5,60 – 0,14) + (5,60 – 0,14) × 1,20 = 6,55 m2 + 6,55 m2 = 13,10 m2

W miejscach szachtów, znajdują się dwa otwory pod instalacje wod.-kan., c.o. i teletechniczne. Objętość każdego z nich wynosi odpowiednio (grubość x długość x szerokość):

O1 = 0,23 × 1,20 × 0,40 = 0,11 m3
O2 = 0,23 × 0,80 × 0,40 = 0,07 m3

Ponieważ objętość otworu O1 > 0,1 m3, to zgodnie z KNR 2-02, Rozdz. 02, pkt 4.1., należy odjąć powierzchnię otworu:

O1 = 1,20 × 0,40 = 0,48 m2

od powierzchni stropu gęstożebrowego DZ-3.

  • Wzmocnienia

Typowy strop gęstożebrowy DZ-3 jest wykonany z belek prefabrykowanych i pustaków żużlobetonowych lub ceramicznych wypełniających przestrzenie między belkami oraz mieszanki betonowej. Po ułożeniu i związaniu współpracuje ona z belkami (formując żebra) oraz tworzy warstwę nadbetonu gr. 3 cm (rys. 2a). Jednak w przypadku:

  • rozpiętości modularnej stropu gęstożebrowego DZ-3 ≥ 5,40 m usztywnia się go co najmniej jednym żebrem poprzecznym (rozdzielczym) biegnącym prostopadle do żeber nośnych,
  • gdy na stropie wzdłuż żebra stropu będzie wymurowana ścianka działowa, to należy pod nią wykonać żebro wzmocnione w postaci dwóch belek prefabrykowanych lub dwóch belek prefabrykowanych i dodatkowej belki monolitycznej pomiędzy nimi.

W analizowanym stropie gęstożebrowym DZ-3 występuje żebro rozdzielcze (rozpiętość powyżej 5,4 m) i dodatkowa belka (dwie belki formujące żebro pod ściankę działową na wyższej kondygnacji – rys. 1, rys. 2b). Należy ustalić czy, a jeżeli tak to jak, przedmiarować takie dodatkowe elementy w stropie gęstożebrowym DZ-3. Zgodnie z KNR 2-02, Rozdz. 02, pkt 2.2.4. W nakładach na stropy DZ, Akermana, Fert uwzględniono żebra usztywniające (prostopadłe do belek), stemplowanie belek o większej rozpiętości oraz ustawienie rygli na stemplach przy podporach dla belek DZ i Fert. W nakładach na stropy DZ uwzględniono ułożenie pod ściankami działowymi drugiej belki. Nakłady na ułożenie trzeciej belki oraz belek pod piece należy uwzględnić dodatkowo.

A zatem jeżeli w stropie gęstożebrowym (np. DZ-3) występują żebra usztywniające to w przedmiarze nie należy dodatkowo obliczać ilości takich robót, ponieważ w nakładach na stropy gęstożebrowe uwzględniono już wykonanie żebra usztywniającego. Natomiast w przypadku dodatkowych belek pod ściankami działowymi wykonywanymi na stropie w przedmiarze uwzględnia się dopiero trzecią belkę.

2. Wykonanie fragmentu stropu żelbetowego płytowego monolitycznego

Wykonanie stropu gęstożebrowego (DZ-3) na całej powierzchni kondygnacji nie zawsze jest możliwe. Taka sytuacja może być spowodowana m.in. brakiem miejsca na oparcie belek prefabrykowanych stropu na ścianie (np. przy kominach K1, K2 – rys. 1). W takich przypadkach zamiast stropu gęstożebrowego wykonuje się strop żelbetowy płytowy monolityczny.

Zgodnie z KNR 2-02, Rozdz. 02, pkt 4.7. Stropy i płyty monolityczne należy obliczać w metrach kwadratowych ich powierzchni z uwzględnieniem części wpuszczonych w mur oraz powierzchni oparcia na ścianach, belkach itp.

Dla roboty „wykonanie fragmentu stropu żelbetowego płytowego” P1 i P2 pomiędzy belkami stropu gęstożebrowego wybrano pozycję z KNR 2-02, Rozdz. 02, Tab. 0216 Żelbetowe płyty stropowe, dachowe, Kol. 02 Żelbetowe płyty stropowe, grubości 15 cm płaskie.

Obliczono ilości robót (rys. 1):

L2 = P1 + P2 = 1,20 × (5,60 – 0,14) + (5,60 – 0,14) × 1,20 = 6,55 + 6,55 = 13,10 m2

  • Przygotowanie i montaż zbrojenia

Dla każdego elementu i konstrukcji żelbetowej w technologii monolitycznej, przygotowanie i montaż zbrojenia w deskowaniu należy przedmiarować (i normować) odrębnie, na podstawie tab. 0290 (patrz KNR 2-02, Rozdz. 02, pkt 5. Warunki specjalne, pkt. 5.1.). Liczbę prętów do zbrojenia betonu należy obliczać w tonach (t) na podstawie dokumentacji projektowej, rysunków wykonawczych i zestawień stali zbrojeniowej (patrz KNR 2-02, Rozdz. 02, pkt 5.2.). Zasady przedmiarowania robót zbrojarskich opisano szczegółowo w przywoływanym wcześniej artykule w BzG 02/2025.

Dla roboty „przygotowanie i montaż zbrojenia fragmentu stropu żelbetowego płytowego” wybrano pozycję z KNR 2-02, Rozdz. 02, Tab. 0290 Przygotowanie i montaż zbrojenia, Kol. 02 Przygotowanie i montaż zbrojenia elementów budynków i budowli – pręty żebrowane.

Obliczono ilości robót – przyjęto orientacyjne zużycie stali zbrojeniowej 25 kg/m2:

L3 = (25,00 · 13,10)/1000 = 0,33 t

3. Wykonanie wieńca obwodowego żelbetowego

Strop gęstożebrowy DZ-3 oparty jest na ścianach konstrukcyjnych za pośrednictwem wieńca obwodowego żelbetowego – zewnętrznego i wewnętrznego o wym. 0,24 x 0,23 m (w przekroju poprzecznym).

Zgodnie z KNR 2-02, Rozdz. 02, pkt 4. Zasady przedmiarowania, pkt 4.10. (…) Belki monolityczne w stropach, jak również belki monolityczne wykonywane pomiędzy belkami DZ i Fert oraz wieńce i belki krawężne ograniczające strop, oblicza się oddzielnie w metrach sześciennych. 

Dla roboty „wykonanie wieńca obwodowego żelbetowego” wybrano pozycję z KNR 2-02, Rozdz. 02, Tab. 0212 Stopy z pustaków typu DZ, Kol. 11 (…) – wieńce monolityczne na ścianach wewnętrznych oraz Kol. 12 (…) – wieńce monolityczne na ścianach zewnętrznych o szerokości do 30 cm.

Obliczono ilości robót (rys. 1):

L4 = 0,24 × 0,23 · (14,42 × 2 + 8,89 × 2) = 2,57 m3 (wieńce na ścianach zewnętrznych)
L5 = 0,24 × 0,23 · (6,00 – 1,20 + 8,89 – 1,20) = 0,69 m3 (wieńce na ścianach wewnętrznych)

  • Przygotowanie i montaż zbrojenia

Dla roboty „przygotowanie i montaż zbrojenia dla wieńców obwodowych” wybrano pozycję z KNR 2-02, Rozdz. 02, Tab. 0290 Przygotowanie i montaż zbrojenia, Kol. 01 Przygotowanie i montaż zbrojenia elementów budynków i budowli – pręty gładkie oraz Kol. 02 jw. – pręty żebrowane.

Obliczono ilości robót – przyjęto orientacyjne zużycie stali zbrojeniowej: 70 kg/m3, przy założeniu: pręty podłużne 4 ø12 mm, strzemiona ø6 mm co 20-25 cm:

L6 = (13,00 · (2,57 + 0,69))/1000 = 0,04 t (strzemiona ø6 mm)
L7 = (57,00 · (2,57 + 0,69))/1000 = 0,19 t (zbrojenie główne ø12 mm)

4. Wykonanie schodów wewnętrznych żelbetowych monolitycznych

W trakcie wykonywania (lub po wykonaniu) stropu gęstożebrowego powstają również wewnętrzne schody żelbetowe monolityczne umożliwiające komunikację pomiędzy kondygnacjami. W budynku mieszkalnym jednorodzinnym zaprojektowano schody dwubiegowe z płytą spocznikową (rys. 3).

Zgodnie z KNR 2-02 Rozdz. 02, pkt 4. Zasady przedmiarowania, pkt 4.8. Schody należy obliczać w metrach kwadratowych rzutu biegów na płaszczyznę poziomą, uwzględniając również powierzchnie spoczników.
Nakłady na schody żelbetowe są zróżnicowane zależnie od grubości płyty, którą należy mierzyć w kierunku prostopadłym do biegu. Grubość płyty w schodach wspornikowych mierzy się w środku części wspornikowej w kierunku prostopadłym do biegu, bez uwzględnienia przekroju stopni. Belki podestowe (kotwowe) należy obliczać w metrach sześciennych.

A zatem biegi schodowe i spoczniki oblicza się w m2 ich powierzchni (ponieważ są elementami płytowymi), przyjmując jednak nie rzeczywistą długość biegu, lecz jego rzut na płaszczyznę poziomą L’b (rys. 3b). Grubość biegu mierzymy prostopadle do podniebienia biegu (rys. 3c).

Dla roboty „wykonanie schodów wewnętrznych żelbetowych monolitycznych” wybrano pozycję z KNR 2-02, Rozdz. 02, Tab. 0218 Schody żelbetowe, Kol. 02 Schody żelbetowe proste na płycie grubości 8 cm.

Obliczono ilości robót (dwa biegi schodowe + spocznik z uwzględnieniem powierzchni oparcia na ścianie konstrukcyjnej – rys. 3a, 3b):

L8 = 1,00 · 1,75 × 2 + 2,10 × (1,10 + 0,20) = 3,50 + 2,73 = 6,23 m2

  • Przygotowanie i montaż zbrojenia

Dla roboty „przygotowanie i montaż zbrojenia schodów wewnętrznych żelbetowych” wybrano pozycję z KNR 2-02, Rozdz. 02, Tab. 0290 Przygotowanie i montaż zbrojenia, Kol. 02 Przygotowanie i montaż zbrojenia elementów budynków i budowli – pręty żebrowane.

Obliczono ilości robót – przyjęto orientacyjne zużycie stali zbrojeniowej 35 kg/m2 biegu schodowego i spocznika:

L9 = (35,00 · 6,23)/1000 = 0,22 t

Kosztorys robót żelbetowych monolitycznych

Założono sporządzenie kosztorysu inwestorskiego metodą szczegółową kalkulacji kosztorysowej.
Dane do kosztorysu:

  • jednostkowe nakłady rzeczowe: robocizny, materiału i pracy sprzętu (nr, nm, ns) przyjęto na podstawie katalogu jednostkowych nakładów rzeczowych KNR 2-02 [1] – pozycje (tablice i kolumny) wybrane w przedmiarze,
  • ceny jednostkowe czynników produkcji budowlanej (Cr, Cm, Cps) przyjęto jako średnie rynkowe dla III kw. 2025 r., na podstawie publikacji cenowej INTERCENBUD [2],
    • stawka kosztorysowa robocizny Cr jak dla robót ogólnobudowlanych dla całego kraju,
    • w przypadku materiałów budowlanych tzw. anonimów do ich nazw dopisano parametry techniczne umożliwiające ustalenie ceny jednostkowej zakupu danego produktu; przykładowo, dla materiału „beton zwykły z kruszywa naturalnego” dopisano klasę betonu – „beton zwykły z kruszywa naturalnego C25/30 (B 30)”,
  • narzuty, tj. koszty pośrednie, koszty zakupu materiałów budowlanych oraz zysk obliczono metodą wskaźnikową (procentową), przyjęto wskaźniki kosztów narzutów (wkp, wz, wkz) jako średnie rynkowe dla III kw. 2025 r., na podstawie publikacji cenowej INTERCENBUD [2].

Odpowiedź:

Wartość kosztorysowa Wk  kompleksowego wykonania stropu gęstożebrowego nad parterem oraz schodów wewnętrznych żelbetowych, w budynku mieszkalnym jednorodzinnym, przyjmując średnie rynkowe ceny jednostkowe czynników produkcji budowlanej i średnie wskaźniki kosztów narzutów jak dla III kw. 2025 r., wynosi:

Wk = 52.760,66 zł

Cena kosztorysowa Ck (z uwzględnieniem stawki VAT 8%):

Ck  = 56.981,51 zł

Cena jednostkowa Cj  kompleksowego wykonania stropu gęstożebrowego DZ-3 nad parterem:

Cj= 417,72 zł/m2

Cena jednostkowa Cjwykonania schodów wewnętrznych żelbetowych:

Cj= 862,71 zł/m2

Podsumowanie i wnioski

W artykule sformułowano zadanie polegające na sporządzeniu przedmiaru i kosztorysu kompleksowego wykonania stropu gęstożebrowego nad parterem i schodów wewnętrznych żelbetowych w budynku mieszkalnym jednorodzinnym (jak na rys. 1, 2, 3).
Zgodnie z zasadami przedmiarowania, podanymi w katalogach jednostkowych nakładów rzeczowych, ilości robót wykonania:

  • stropu gęstożebrowego DZ-3 – oblicza się w m2 powierzchni stropu, przyjmując wymiary w świetle podpór (ścian konstrukcyjnych, podciągów itp.) z potrąceniem powierzchni otworów, wnęk i gniazd, których objętość jest większa niż 0,1 m3; nie przedmiaruje się żeber usztywniających oraz ułożenia drugiej belki pod ścianami działowymi, ponieważ w nakładach na stropy gęstożebrowe uwzględniono wykonanie tych elementów,
  • wieńców obwodowych – oblicza się w m3 objętości wieńca,
  • stropu żelbetowego płytowego monolitycznego – oblicza się w m2 powierzchni stropu z uwzględnieniem oparcia na ścianach, belkach itp.,
  • zbrojenia – w tonach t,
  • biegów schodowych i spoczników – oblicza się w m2 powierzchni biegów i spocznika (łącznie z powierzchnią oparcia spocznika na podporze, np. ścianie), przyjmując długość rzutu biegu na płaszczyznę poziomą.

Wielkości i oznaczenia jednostek przedmiarowych dla robót żelbetowych monolitycznych można również odczytać z tablic (lewy górny narożnik), dla których zostały ustalone jednostkowe nakłady rzeczowe.

Pozostałe uwagi dotyczące przedmiarowania i kosztorysowania robót żelbetowych monolitycznych są takie same jak w podsumowaniu i wnioskach do artykułów autora z poprzednich wydań BzG 1, 2, 3/2025.

Bibliografia
  • KNR 2-02 „Konstrukcje budowlane”, ORGBUD, wyd. spec. 1998
  • INTERCENBUD Baza realnych cen do kosztorysów, III kw. 2025 r., wyd. Athenasoft