W ramach cyklu edukacyjnego dla początkujących kosztorysantów pt. „Lekcja kosztorysowania” szczegółowo opisujemy zasady przedmiarowania i kosztorysowania robót betonowych i żelbetowych wykonywanych w technologii monolitycznej (in situ). Dotychczas analizie poddano wykonanie ław i stóp fundamentowych (BzG 2/2025), a także stropu gęstożebrowego (DZ-3) z wieńcem obwodowym, fragmentu stropu żelbetowego płytowego oraz schodów wewnętrznych w budynku mieszkalnym jednorodzinnym (BzG 4/2025).

W tym artykule przedstawimy zasady przedmiarowania oraz sporządzimy kosztorys na przykładzie innych typowych elementów konstrukcyjnych żelbetowych monolitycznych w domach jednorodzinnych, tj. ścian, słupów oraz belek (pełniących funkcję podciągów). Przyjęto te same założenia i ograniczenia, jak we wcześniejszych artykułach, a mianowicie:

  • roboty (elementy) betonowe i żelbetowe monolityczne wykonywane są w deskowaniach tradycyjnych z drewna iglastego,
  • w przedmiarowaniu robót betonowych i żelbetowych monolitycznych zastosowano zasady zawarte w katalogu KNR 2-02 Konstrukcje budowlane, rozdz. 02 "Konstrukcje betonowe i żelbetowe monolityczne" (dalej: KNR 2-02, rozdz. 02) [1]. Zasady przedmiarowania robót betonowych i żelbetowych monolitycznych podane w innych katalogach mogą się różnić.

Przykładowe zadanie

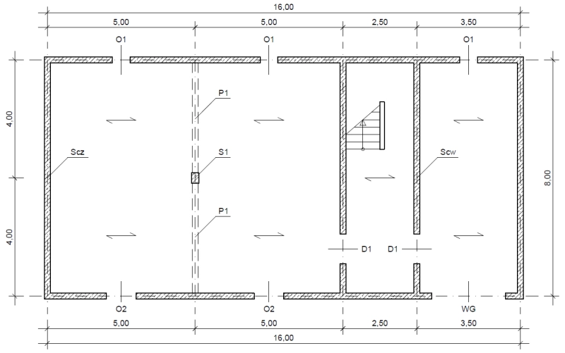
Dla wybranych elementów konstrukcyjnych żelbetowych monolitycznych w piwnicy budynku mieszkalnego jednorodzinnego, tj. ścian, słupa oraz belek/podciągów (zob. rys.), należy:

  1. Ustalić zakres rzeczowy wszystkich robót żelbetowych monolitycznych.
  2. Sporządzić przedmiar robót żelbetowych monolitycznych.
  3. Sporządzić kosztorys robót żelbetowych monolitycznych metodą szczegółową kalkulacji kosztorysowej.

W zadaniu pominięto schody wewnętrzne żelbetowe (i ścianę murowaną przy schodach), ponieważ zasady ich przedmiarowania zostały opisane w lekcji kosztorysowania nr 4 (BzG 4/2025).

Rzut piwnicy budynku mieszkalnego jednorodzinnego Rys. M. Szymański

Rzut piwnicy budynku mieszkalnego jednorodzinnego

Zakres rzeczowy robót

Przyjęto, że na kondygnacji podziemnej (piwnicy) wszystkie ściany konstrukcyjne zewnętrzne i wewnętrzne zaprojektowano jako żelbetowe monolityczne. Dodatkowo, w celu podparcia belek stropu gęstożebrowego nad piwnicą, zaplanowano belki/podciągi oparte na ścianach konstrukcyjnych zewnętrznych i słupie żelbetowym. Zatem kompleksowy zakres rzeczowy robót żelbetowych monolitycznych w piwnicy obejmuje wykonanie:

  • ścian żelbetowych zewnętrznych (Scz) i wewnętrznych (Scw) o gr. 0,20 m,
  • jednego słupa żelbetowego (S1) prostokątnego o wym.: 0,25 × 0,25 × 2,60 m,
  • dwóch belek/podciągów (P1) o wym.: 0,25 × 0,35 × 4,00 m,
  • przygotowanie i montaż zbrojenia dla ww. elementów.

Wszystkie elementy żelbetowe wykonano z betonu klasy C25/30 (B 30). Wysokość pomieszczeń (od wierzchu ławy do spodu stropu) wynosi 2,60 m.

Przedmiar robót żelbetowych monolitycznych

Szczegółowe zasady przedmiarowania robót betonowych i żelbetowych monolitycznych przedstawiono w poprzednich odcinkach cyklu. Przypomnijmy tylko, że jednostka przedmiarowania elementów żelbetowych monolitycznych zależy – co do zasady – od ich kształtu. Elementy o kształcie:

  • blokowym (np. ławy i stopy fundamentowe) oraz prętowym (słupy, belki/podciągi i wieńce) oblicza się w metrach sześciennych (m3), jako objętości brył geometrycznych poszczególnych elementów,
  • płytowym (ściany, stropy, biegi schodowe, balkony, daszki itp.) oblicza się w metrach kwadratowych (m2) ich powierzchni (por. KNR 2-02, rozdz. 02, pkt. 4. „Zasady przedmiarowania").

Wykonanie ścian żelbetowych zewnętrznych (Scz) i wewnętrznych (Scw) monolitycznych w piwnicy

Zgodnie z KNR 2-02, rozdz. 02, pkt. 4 „Zasady przedmiarowania":

  • pkt. 4.1. „(…) Elementy i konstrukcje płaskie, jak: ściany, płyty itp. oblicza się w metrach kwadratowych ich powierzchni. Z powierzchni elementów lub konstrukcji nie potrąca się otworów, wnęk lub gniazd o objętości do 0,1 m3 każde”.
  • pkt. 4.6. „Ściany proste w deskowaniach zwykłych lub przestawnych oraz ściany łukowe należy obliczać w metrach kwadratowych, przyjmując wymiary po osi ściany w świetle ograniczających je elementów jak słupy, belki itp. z potrąceniem otworów w świetle betonu, których kubatura każdego przekracza ,1 m3”.
  • pkt. 4.7. „Stropy i płyty monolityczne należy obliczać w metrach kwadratowych ich powierzchni z uwzględnieniem części wpuszczonych w mur oraz powierzchni oparcia na ścianach, belkach itp.”.

W celu ustalenia ilości robót obliczono powierzchnię ścian żelbetowych monolitycznych jako iloczyn długości i wysokości ścian, przyjmując:

  • długości ścian po osiach, w świetle ograniczających jeelementów,
  • wysokość ścian od wierzchu ławy fundamentowej (na której dana ściana jest posadowiona) do powierzchni oparcia stropu.

Dla robót „wykonanie ścian żelbetowych monolitycznych grubości 20 cm” przyjęto pozycję z KNR 2-02, rozdz. 02, tab. 0207, „Ściany żelbetowe", kol. 03 Ściany żelbetowe proste grubości 12 cm wysokości do 6 m oraz kol. 07 dodatek za każdy 1 cm różnicy grubości ścian.

Obliczono ilość robót (rys. 1):

  • ściany zewnętrzne:

L1’ = (5,00 + 5,00 + 2,50 + 3,50 + 4,00 + 4,00 + 3,50 + 2,50 + 5,00 + 5,00 + 4,00 + 4,00) × 2,60 = 124,80 m2

  • ściany wewnętrzne:

L1” = (2 × 4,00 – 2 × 0,10) × 2,60 × 2 = 40,56 m2

W ścianach żelbetowych monolitycznych zaprojektowano łącznie osiem otworów, tj. pięć okiennych, dwa drzwiowe oraz jeden na wrota garażowe. Objętości poszczególnych otworów wynoszą (grubość × szerokość × wysokość):

  • otwory okienne O1: 0,20 × 0,60 × 0,50 = 0,06 m3,
  • otwory okienne O2: 0,20 × 1,00 × 0,50 = 0,10 m3,
  • otwory drzwiowe D1: 0,20 × 1,00 × 2,00 = 0,40 m3,
  • otwór na wrota garażowe WG: 0,20 × 2,50 × 2,10 = 1,05 m3.

Ponieważ objętości otworów drzwiowych D1 oraz na wrota garażowe WG są większe od 0,1 m3, zgodnie z zasadami przedmiarowania z pkt. 4.1 i 4.6 KNR 2-02, rozdz. 02, ich powierzchnię należy odjąć od powierzchni ścian żelbetowych:

  • otwory drzwiowe: PD1 = 1,00 × 2,00 × 2 = 4,00 m2,
  • otwór wrót garażowych: PWG = 2,50 × 2,10 × 1 = 5,25 m2.

(por. przedmiar robót, poz. 1 – powierzchnie otworów drzwiowych, powierzchnia otworu wrót garażowych).
L1
= L1’ + L1’’PD1PWG = 124,80 + 40,56 – 4,00 – 5,25 = 156,11 m2

Wykonanie słupa żelbetowego monolitycznego (S1) w piwnicy 

Zgodnie z KNR 2-02, rozdz. 02, pkt. 4 „Zasady przedmiarowania":

  • pkt. 4.1 słup jest elementem prętowym, dla którego ilość robót oblicza się w metrach sześciennych (m3) jako objętość bryły geometrycznej tego elementu,
  • pkt. 4.2. „Słupy elementów i konstrukcji budynków i budowli oblicza się, uwzględniając wysokość słupów pod stropy monolityczne od powierzchni fundamentów do wierzchu płyty górnego stropu lub dachu, a dla słupów wolnostojących – niełączących się ze stropami monolitycznymi – do wierzchu słupa”.

W celu ustalenia ilości robót obliczono objętość słupa żelbetowego monolitycznego jako iloczyn pola przekroju poprzecznego i wysokości słupa, przyjmując wysokość od wierzchu fundamentu (stopy fundamentowej, na której słup jest posadowiony), do spodu stropu nad piwnicą (górnej podstawy słupa). Wysokość słupa nie została przyjęta do wierzchu płyty górnego stropu, ponieważ w budynku zaprojektowano stropy gęstożebrowe, a nie płyty stropowe żelbetowe monolityczne.

Dla robót „wykonanie słupów żelbetowych monolitycznych” przyjęto pozycję z KNR 2-02, rozdz. 02, tab. 0208, kol. 04 Słupy żelbetowe, prostokątne o wysokości do 4 m; stosunek deskowanego obwodu do przekroju do 16. W tablicy nakłady na wykonanie słupów zostały zróżnicowane w zależności od stosunku długości deskowanego obwodu do powierzchni pola przekroju, mierzonego w połowie wysokości elementu.
Warto wiedzieć! W programie Norma EXPERT w pierwszych wierszach tab. 0208 i 0210 zastosowano kalkulator, do którego wprowadza się wymiary przekroju poprzecznego elementu. Na tej podstawie program oblicza wartość stosunku obwodu do powierzchni przekroju i przyporządkowuje ją do odpowiedniej kol. z tab. 0208 i 0210 KNR 2-02 (kosztorysant nie musi tego liczyć). Jak skorzystać z tego kalkulatora pisaliśmy w artykule „Ściany i słupy żelbetowe” (BzG 4/2025).

Obliczono ilość robót (rys.):
L3 =
0,25 × 0,25 × 2,60 × 1 = 0,16 m3

Wykonanie belki/podciągu żelbetowego monolitycznego (P1) w piwnicy

Zgodnie z KNR 2-02, rozdz. 02, pkt. 4 „Zasady przedmiarowania":

  • pkt. 4.1 belka (podciąg) jest elementem prętowym, dla którego ilość robót oblicza się w metrach sześciennych (m3) jako objętość bryły geometrycznej tego elementu,
  • pkt. 4.4. „Belki i podciągi stropowe oblicza się, uwzględniając ich długość pomiędzy słupami, podciągami lub wieńcami, a dla belek wolnopodpartych całkowitą ich długość wraz z oporami. Z objętości belek i podciągów należy odejmować objętości betonu wliczonego do płyty”.

W celu ustalenia ilości robót obliczono objętość belek (podciągów) żelbetowych monolitycznych jako iloczyn pola przekroju poprzecznego i długości belki (podciągu), przyjmując ich długości pomiędzy słupami oraz wieńcami.

Dla robót „wykonanie podciągów żelbetowych monolitycznych” przyjęto pozycję z KNR 2-02, rozdz. 02, tab. 0210 Belki i podciągi żelbetowe, kol. 03 Belki i podciągi żelbetowe; stosunek deskowanego obwodu do przekroju do 12.

W tab. 0210 KNR 2-02 nakłady na wykonanie belek i podciągów zostały zróżnicowane w zależności od stosunku długości deskowanego obwodu do powierzchni pola przekroju, mierzonego w środku rozpiętości belek i podciągów.

Obliczono ilość robót (rys.):
L5 =
0,25 × 0,35 × 4,00 × 2 = 0,70 m3

Przygotowanie i montaż zbrojenia

Zasady przedmiarowania robót zbrojarskich zostały szczegółowo opisane w lekcji kosztorysowania nr 2 (BzG 2/2025). Zgodnie z KNR 2-02, rozdz. 02, pkt. 5. „Warunki specjalne":

  • pkt. 5.1. „W tablicach konstrukcji żelbetowych nie uwzględniono nakładów robocizny, materiałów i sprzętu dotyczących wykonania zbrojenia. Nakłady te należy normować odrębnie na podstawie tablicy 90 (z wyjątkiem tablicy 63)”.
  • pkt. 5.2. „Ilość prętów do zbrojenia betonu należy przyjmować w tonach na podstawie dokumentacji projektowej (rysunków roboczych lub zestawień stali)”.

Z powyższych warunków wynika, że nakłady na wykonanie zbrojenia należy przyjmować odrębnie, a ilości robót zbrojarskich odczytywać z dokumentacji projektowej, najlepiej z rysunków wykonawczych zawierających m.in. zestawienia stali zbrojeniowej dla poszczególnych elementów żelbetowych.

W załączonej do niniejszego zadania dokumentacji projektowej znajdują się jedynie proste rysunki architektoniczno-budowlane, z których nie można odczytać ilości stali zbrojeniowej w ścianach, słupach i podciągach żelbetowych monolitycznych. Taka sytuacja często ma miejsce również w praktyce kosztorysowej – kosztorysant musi obliczyć ilości robót zbrojarskich, nie mając projektu wykonawczego. W takich przypadkach stosuje się przybliżone sposoby ustalania ilości zbrojenia w elementach żelbetowych monolitycznych. Jeden z nich polega na przyjmowaniu średniej ilości zbrojenia w tonach lub kilogramach w przeliczeniu na:

  • 1 m2 powierzchni elementu płytowego (np. ściany),
  • 1 m3 objętości elementu prętowego (np. belki/podciągu).

Dla elementów żelbetowych konstrukcyjnych w budynku mieszkalnym jednorodzinnym można przyjąć następujące wartości orientacyjne:

  • ściany żelbetowe monolityczne: 8÷15 kg/m2, przyjęto 12 kg/m2,
  • słupy żelbetowe monolityczne: 100÷200 kg/m3, przyjęto 150 kg/m3,
  • belki/podciągi monolityczne: 80÷150 kg/m3, przyjęto 120 kg/m3.

L2 = 12 × poz. 1 / 1000 = 12 × 156,11 / 1000 = 1,87 t
L4
= 150 × poz. 3 / 1000 = 150 × 0,16 / 1000 = 0,02 t
L6
= 120 × poz. 5 / 1000 = 120 × 0,70 / 1000 = 0,08 t

tabelka

Tab. 1 Przedmiar robót elementów żelbetowych – ściany, słup i podciągi

Sporządzenie kosztorysu robót żelbetowych monolitycznych

Założono sporządzenie kosztorysu inwestorskiego metodą szczegółową kalkulacji kosztorysowej.

Dane do kosztorysu:

  • jednostkowe nakłady rzeczowe (robocizny – nr, materiału – nm i pracy sprzętu – ns) przyjęto na podstawie katalogu jednostkowych nakładów rzeczowych KNR 2-02 [1] – pozycje (tablice i kolumny) określone w przedmiarze robót,
  • ceny jednostkowe czynników produkcji budowlanej (stawka kosztorysowa robocizny – Cr, ceny jednostkowe nabycia materiałów budowlanych – Cm, ceny jednostkowe pracy sprzętu – Cps) przyjęto jako średnie rynkowe dla IV kw. 2025 r., na podstawie bazy cenowej INTERCENBUD [2], w tym:
    • stawka kosztorysowa robocizny Cr jak dla robót ogólnobudowlanych dla całego kraju,
    • w przypadku materiałów budowlanych tzw. anonimów do ich nazw dopisano parametry techniczne umożliwiające ustalenie ceny jednostkowej zakupu danego materiału (np. do materiału beton zwykły z kruszywa naturalnego dopisano klasę betonu C25/30 (B 30)),
  • narzuty (koszty pośrednie, koszty zakupu materiałów budowlanych oraz zysk) obliczono metodą wskaźnikową (procentową); przyjęto wskaźniki kosztów narzutów (wkp, wz, wkz) jako średnie rynkowe dla IV kw. 2025 r., na podstawie bazy cenowej INTERCENBUD [2].

Odpowiedź:

Wartość kosztorysowa Wk kompleksowego wykonania w deskowaniu tradycyjnym ścian, słupa i podciągów żelbetowych monolitycznych w piwnicy budynku mieszkalnego jednorodzinnego, przyjmując średnie rynkowe ceny jednostkowe czynników produkcji budowlanej oraz średnie wskaźniki kosztów narzutów jak dla IV kw. 2025 r., wynosi:

Wk = 97 759,71 zł

Cena kosztorysowa Ck:

Ck = 105 580,49 zł

Ceny jednostkowe Cj wykonania poszczególnych elementów:

  • ściany żelbetowe monolityczne (bez zbrojenia/ze zbrojeniem):
    Cj1 = 504,01 zł/m2 / Cj1,2 = 603,96 zł/m2
  • słupy żelbetowe monolityczne (bez zbrojenia/ze zbrojeniem):
    Cj3 = 3 246,26 zł/m3 / Cj3,4 = 4 289,31 zł/m3
  • belki (podciągi) żelbetowe monolityczne (bez zbrojenia/ze zbrojeniem):
    Cj5 = 3 029,88 zł/m3 / Cj5,6 = 3 983,52 zł/m3

Podsumowanie i wnioski

W artykule sformułowano zadanie polegające na sporządzeniu przedmiaru i kosztorysu wykonania typowych elementów konstrukcyjnych żelbetowych monolitycznych występujących w budynku mieszkalnym jednorodzinnym, tj. ścian, słupów oraz belek/podciągów (jak na rys.).
Zgodnie z zasadami przedmiarowania, podanymi w katalogach jednostkowych nakładów rzeczowych, ilości robót wykonania:

  • ścian – oblicza się w m2 ich powierzchni, przyjmując długość po osiach ścian w świetle ograniczających je elementów, z potrąceniem powierzchni otworów w świetle betonu, których kubatura każdego przekracza 0,1 m3,
  • słupa – oblicza się w m3 jego objętości, w przypadku słupa pod stropy gęstożebrowe, przyjmując jego wysokość od wierzchu fundamentu do spodu stropu nad piwnicą (do górnej podstawy słupa),
  • belki/podciągu – oblicza się w m3 jego objętości, przyjmując długość podciągu pomiędzy słupem a wieńcami oraz odejmując od ich objętości ilość betonu wliczonego do płyty stropowej,
  • zbrojenia – jego przygotowanie i montaż normowano odrębnie w tonach, przy czym z powodu braku projektu wykonawczego, ilości zbrojenia ustalono w sposób przybliżony (w t/m2 lub t/m3).

W wycenie ścian, słupów i belek (podciągów) żelbetowych monolitycznych nie normowano dodatkowo stemplowań i rusztowań, ponieważ zgodnie z pkt. 2.2.3. KNR 2-02 – Nakłady dla elementów budynków i budowli obejmują wykonanie stemplowań i rusztowań o wysokości do 4 m w tab. 0208 i 0210 KNR 2-02 nakłady na słupy oraz belki/podciągi zostały zróżnicowane w zależności od stosunku długości deskowanego obwodu elementu do powierzchni jego przekroju poprzecznego.
Wielkości i oznaczenia jednostek przedmiarowych dla robót żelbetowych monolitycznych można również odczytać z tablic (lewy górny narożnik), dla których zostały ustalone jednostkowe nakłady rzeczowe.
Pozostałe uwagi dotyczące przedmiarowania i kosztorysowania robót żelbetowych monolitycznych są takie same jak w podsumowaniu i wnioskach do lekcji kosztorysowania z poprzednich wydań BzG (zob. cykl Lekcja kosztorysowania).

tabelka

Tab. 2 Fragment kosztorysu wykonania elementów żelbetowych – ściany, słup i podciągi 

Bibliografia
  1. KNR 2-02 „Konstrukcje budowlane”, ORGBUD, wyd. spec. 1998
  2. INTERCENBUD – Baza realnych cen do kosztorysów, IV kw. 2025 r., ATHENASOFT